.jpg)
9822 Cabin Road, Oakley, IL
$384,000
Pending
3 Beds
3½ Baths
2,884 SqFt
10.00 Acres
2 Car Garage
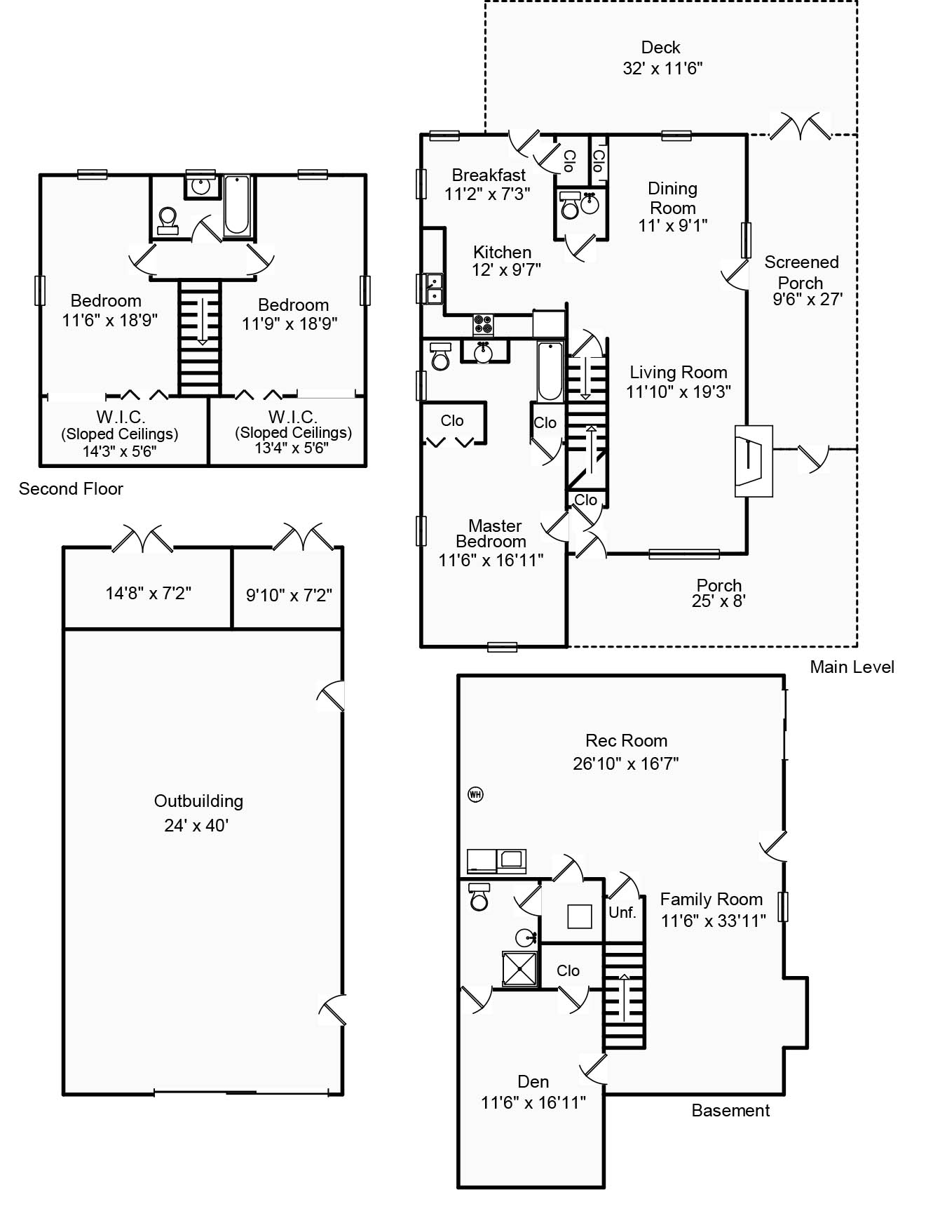
About 9822 Cabin Road
1.5 Story 3-bedroom 3.5 bath home on 10 acres of a natural habitat, a beautiful setting, mostly timber with a small pond, also a stream running through the back portion, paths make it easy to walk this entire property, there is a large meadow type area halfway back, great for a private escape, camping or just relaxation, it's all perfect for hunting! Enjoy this peaceful setting from the home's front to back wrap around porch, which is partially screened, or the basement walk-out patio. This home offers a main floor bedroom and bath, upper two bedrooms and full bath, full finished basement with a full bath, family/rec room and den. A 24x40 shed/garage heated by a wood burning furnace, used year-round, two attached wood storage units for easy wood access, plus a .5 fenced area for pets. There is a second drive-in access from Cabin Rd, electricity and septic are available to this location for various options. Roof '17, septic system inspected/pumped out July '25. Visit & Buy Today!
Facts & Features
MLS® # | 6254693 |
---|---|
Price | $384,000 |
Cost Per Square Foot | $133 |
Bedrooms | 3 |
Bathrooms | 4.00 |
Full Baths | 3 |
Half Baths | 1 |
Total Finished Square Feet | 2,884 |
Total Finished Above Grade | 1,808 |
Main | 1,108 |
Upper 1 | 700 |
Basement Total | 1,120 |
Basement Finished | 1,076 |
Basement Unfinished | 44 |
Acres | 10.00 |
Year Built | 1993 |
Type | Single Family |
Sub-Type | Single Family Residence |
Style | Other |
Status | Pending |
Taxes | $5,559 |
Tax Year | 2024 |
Community Information
Address | 9822 Cabin Road |
---|---|
City | Oakley |
County | Macon |
State | IL |
Zip Code | 62501 |
Amenities
Parking | Garage, Detached |
---|---|
# of Garage Spaces | 2 |
Is Waterfront | No |
Has Pool | No |
Interior
Appliances | Dishwasher, Microwave, Oven, Refrigerator, Cooktop, Propane Water Heater, Water Purifier |
---|---|
Heating | Forced Air, Propane |
Cooling | Central Air, Whole House Fan |
Has Basement | Yes |
Basement | Finished, Full, Walk-Out Access |
Fireplace | Yes |
# of Fireplaces | 1 |
Fireplaces | Gas, Family/Living/Great Room, Wood Burning Stove |
Stories | One and One Half |
Exterior
Exterior Features | Shed, Fruit Trees, Workshop |
---|---|
Roof | Asphalt, Shingle |
Construction | Vinyl Siding, Other |
Foundation | Basement |
School Information
District | Cerro Gordo Dist 100 |
---|
Additional Information
Date Listed | August 22nd, 2025 |
---|---|
Days on Market | 27 |
Zoning | R-5 |
Listing Details
Agent | Robin Thacker |
---|---|
Office | Brinkoetter REALTORS® |