.jpg)
117 S Sunnyside Drive, Blue Mound, IL
$130,000
Active
3 Beds
1 Bath
1,932 SqFt
0.19 Acres
1 Car Garage
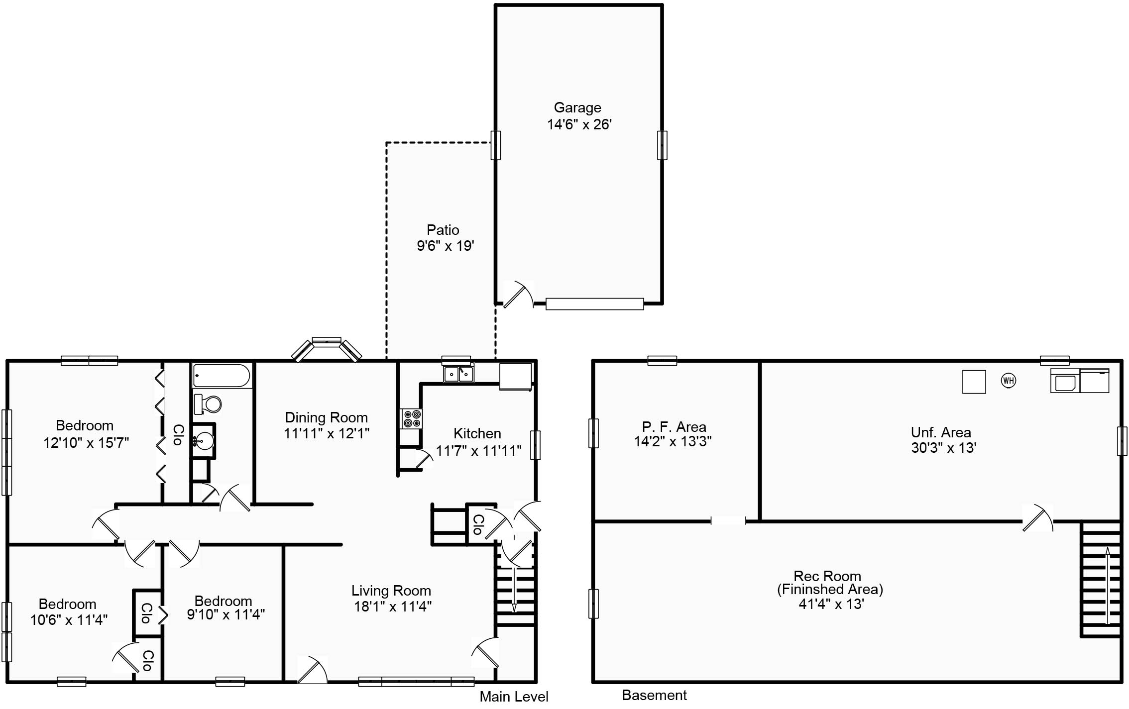
About 117 S Sunnyside Drive
Remodeled ranch in Meridian School District. This three bedroom boasts all new flooring, paint, windows and gutters. Basement could be finished out to buyers taste for additional living space. There is a two car detached garage. This beautiful home is move in ready! Seller prefers to sell as is since total remodel.
Facts & Features
MLS® # | 6255510 |
---|---|
Price | $130,000 |
Cost Per Square Foot | $67 |
Bedrooms | 3 |
Bathrooms | 1.00 |
Full Baths | 1 |
Total Finished Square Feet | 1,932 |
Total Finished Above Grade | 1,288 |
Main | 1,288 |
Basement Total | 1,288 |
Basement Finished | 644 |
Basement Unfinished | 644 |
Acres | 0.19 |
Year Built | 1959 |
Type | Single Family |
Sub-Type | Single Family Residence |
Style | Ranch |
Status | Active |
Taxes | $3,102 |
Tax Year | 2024 |
Community Information
Address | 117 S Sunnyside Drive |
---|---|
Subdivision | Sunnyside Add |
City | Blue Mound |
County | Macon |
State | IL |
Zip Code | 62513 |
Amenities
Parking | Detached, Garage |
---|---|
# of Garage Spaces | 1 |
Is Waterfront | No |
Has Pool | No |
Interior
Appliances | Dishwasher, Electric Water Heater |
---|---|
Heating | Forced Air |
Cooling | Central Air |
Has Basement | Yes |
Basement | Full, Unfinished |
Fireplace | No |
# of Stories | 1 |
Stories | One |
Exterior
Roof | Shingle |
---|---|
Construction | Vinyl Siding |
Foundation | Basement |
School Information
District | Meridian Dist 15 |
---|
Additional Information
Date Listed | October 9th, 2025 |
---|---|
Days on Market | 12 |
Zoning | RES |
Listing Details
Agent | Jason White |
---|---|
Office | Brinkoetter REALTORS® |