.jpg)
7450 W William Street, Decatur, IL
$60,000
Pending
2 Beds
2 Baths
1,008 SqFt
0.96 Acres
2 Car Garage
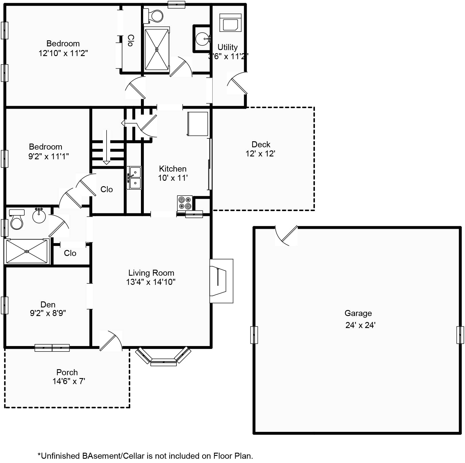
About 7450 W William Street
Great price and potential investment opportunity with this quaint ranch on almost an acre wooded lot in Sangamon Valley schools! The house has been updated with a metal roof on the house and garage, vinyl siding, replacement windows, new and refinished flooring, new trim and paint, HVAC (2021), and 2 remodeled bathrooms. The kitchen is open to the living room with a wood burning fireplace. There are 2 bedrooms and a 3rd room that could be used as a bedroom or den. Laundry room is on the main level. The property includes two storage sheds, a 2-car detached garage, PLUS some pear and apple trees! For this price, the property is being sold AS IS. (Sqft not deemed accurate until professionally measured)
Facts & Features
MLS® # | 6255581 |
---|---|
Price | $60,000 |
Cost Per Square Foot | $60 |
Bedrooms | 2 |
Bathrooms | 2.00 |
Full Baths | 2 |
Total Finished Square Feet | 1,008 |
Total Finished Above Grade | 1,008 |
Main | 1,008 |
Basement Total | 960 |
Acres | 0.96 |
Year Built | 1930 |
Type | Single Family |
Sub-Type | Single Family Residence |
Style | Ranch |
Status | Pending |
Taxes | $1,369 |
Tax Year | 2024 |
Community Information
Address | 7450 W William Street |
---|---|
City | Decatur |
County | Macon |
State | IL |
Zip Code | 62522 |
Amenities
Parking | Detached, Garage |
---|---|
# of Garage Spaces | 2 |
Is Waterfront | No |
Has Pool | No |
Interior
Appliances | Dryer, Gas Water Heater, Refrigerator, Washer, Oven |
---|---|
Heating | Forced Air |
Cooling | None |
Has Basement | Yes |
Basement | Unfinished, Full |
Fireplace | Yes |
# of Fireplaces | 1 |
Fireplaces | Family/Living/Great Room, Wood Burning |
# of Stories | 1 |
Stories | One |
Exterior
Exterior Features | Shed |
---|---|
Roof | Metal |
Construction | Vinyl Siding |
Foundation | Basement |
School Information
District | Sangamon Valley Dist 9 |
---|
Additional Information
Date Listed | October 10th, 2025 |
---|---|
Days on Market | 8 |
Zoning | RES |
Listing Details
Agent | Joseph Doolin |
---|---|
Office | Brinkoetter REALTORS® |